
扫二维码查看手机官网
扇形闸门应用于建材、冶金、矿山、化工、电力等行业,是各类落料系统的控制装置。
一、结构特点
结构简单,由钢板焊接而成,具有开启灵活、无卡阻等特点,配有传动定位装置,可随时根据工况需要确定闸门的开启角度,调节物料流量,适用于无粘度的固体粉料及小于圣30mm颗粒料、晶体料的下料输送。
二、性能参数

三、工作原理
扇形闸门由本体、扇形闸板、轴、密封、执行机构等部件构成,手动或执行机构推动摇杆使扇形闸板沿轴心旋转开启,物料随即下落,待接料装置满载后再推动摇杆使扇形闸板复位,关闭截载断下落的物料。
四、使用说明
安装时请注意闸门本体上标明介质流向,两法兰连接时必需加密封垫片,然后均匀锁紧螺栓。
运行时请辨清扇形闸板开关方向,执行机构请正确接线。
若长期存放应使设备处于关闭状态,各传动部位加润滑油,不允许露天存放或堆置。



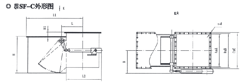
五、SF系列外形连接尺寸


六、KD/QYSF-C外形 连接尺寸

七、订货须知
选用订货时,请参照产品样本注明产品规格、型号及搜术参数(使用温度、设备工况、介质性质等)。
样本所示产品图例及表格中所列传动装置号为我公司普通基本配置,不带任何相关配件,您若有特殊要求(防爆、户外),请在合同中注明。
表格中未列规格、用于特殊介质或其它特殊要求,请与我公司经销部、技术部联系,可为您另行设计、制造。
公 司:南通紫瑞环保科技有限公司
手 机:13773759188
邮 箱:13773759188@163.com
地 址:江苏省南通市海安高新区谢庄村10组