
扫二维码查看手机官网
一、概述
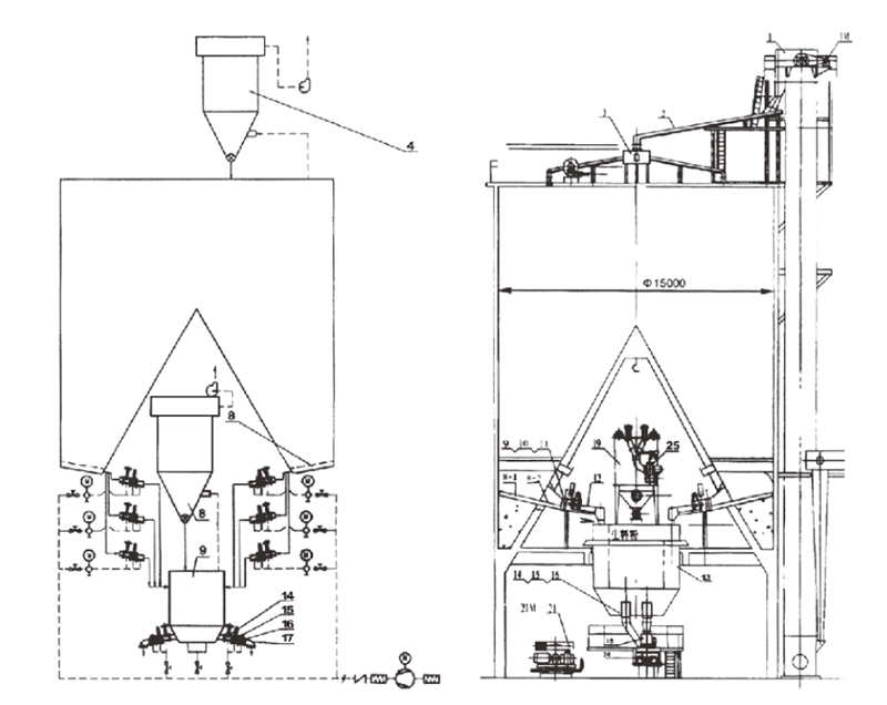
IBAU库采用德国汉堡公司的连续均化技术。在外部带一搅拌仓,库底中心设一大圆锥,库内生料的重量通过锥传递给库壁,库底环形空间被分成向中心倾斜10°的8个充气区,每区装多种规格充气箱。充气卸料时生料首先被送至一条径向布置的充气箱上,再经过锥体下部的出料口由空气斜槽送入库底中央搅拌仓中,卸料时,生料在自上而下的流动过程中,切割水平料层而产生重力混合作用,进入搅拌仓后又因连续充气搅拌而得到进一步均化,均化值可达6-8,电耗0.1-0.2kwh/t生料。
二、库工艺参数

IBAU库示意图

技术参数表

公 司:南通紫瑞环保科技有限公司
手 机:13773759188
邮 箱:13773759188@163.com
地 址:江苏省南通市海安高新区谢庄村10组